Sonnige Bestlage in Falkenstein – teilweise entkernter Bestand zur Neugestaltung oder Neubebauung
61462 Königstein im Taunus-Falkenstein, Einfamilienhaus zum Kauf
Kontaktdaten

- NameFrau Bettina Iller
- FirmaIller's finest Immobilien
- AnschriftRotbornstraße 23
61440 Oberursel - E-Mail
- Telefon
Energieausweis
- EnergieausweistypBedarfsausweis
- Gültig bis05.09.2033
- GebäudeartWohngebäude
- Baujahr lt. Energieausweis1960
- PrimärenergieträgerÖl
- Endenergiebedarf182,90 kWh/(m²·a)
- EnergieeffizienzklasseF
Objektdaten
- Objekt-IDK-2026-107
- ObjekttypenEinfamilienhaus, Haus
- Adresse61462 Königstein im Taunus-Falkenstein
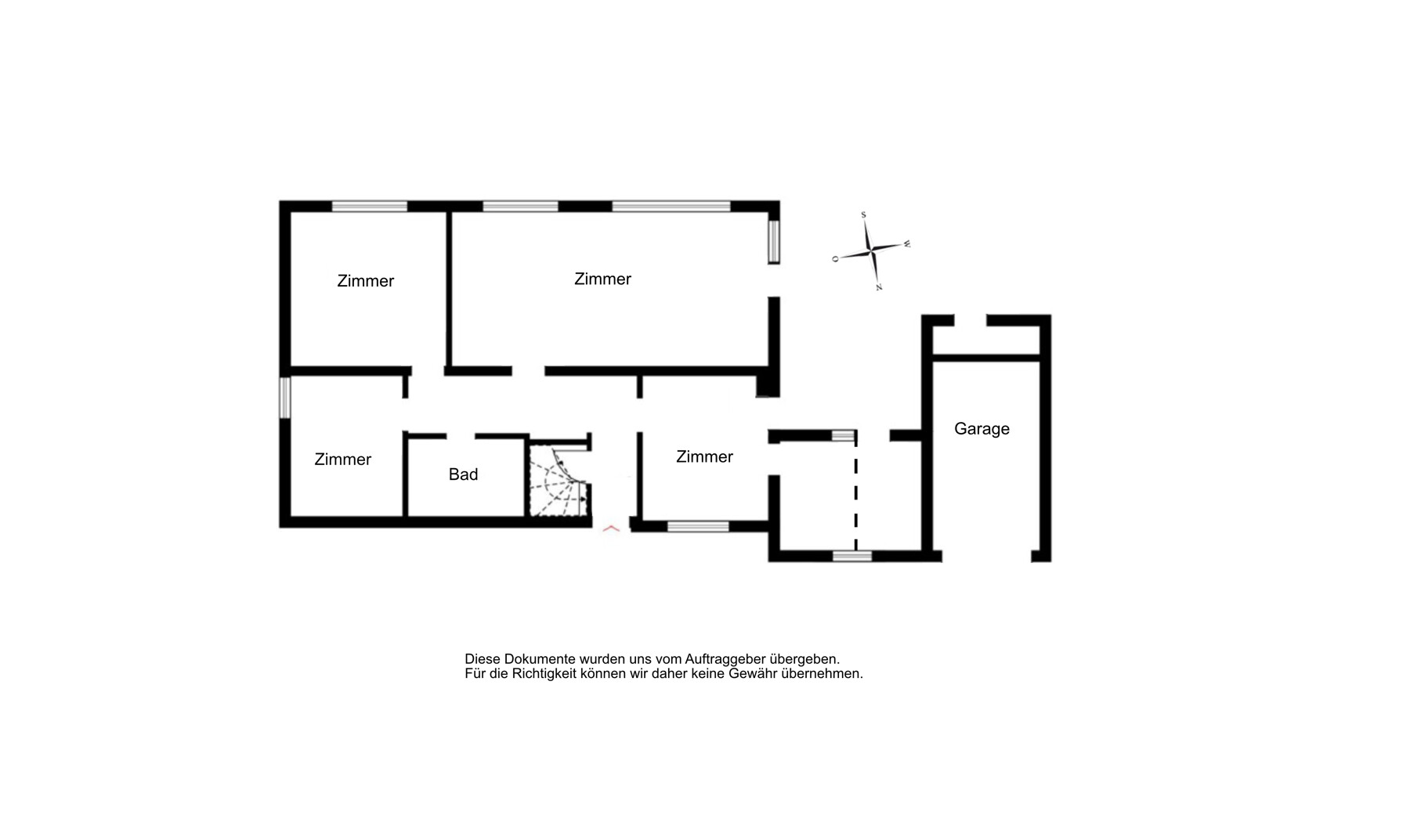
- Wohnfläche ca.177 m²
- Nutzfläche ca.54 m²
- Grundstück ca.1.258 m²
- Zimmer6
- Terrassen1
- Wesentlicher EnergieträgerÖl
- Baujahr1960
- Außenstellplatz1
- Garagenstellplatz1 Stellplatz
- Käuferprovision3,57 % inkl. gesetzlicher MwSt.
- Kaufpreis1.540.000 EUR
Ausstattung / Merkmale
- ✓ Keller
- ✓ Terrasse
Objektbeschreibung
Dieses attraktive Grundstück in bevorzugter Südausrichtung befindet sich in begehrter Familienwohnlage von Falkenstein und bietet vielfältige Möglichkeiten zur Verwirklichung eines individuellen Wohnprojekts.
Auf dem Grundstück steht derzeit eine teilweise entkernte Bestandsimmobilie, ein Zweifamilienhaus, welches nach eigenen Vorstellungen modernisiert oder erweitert werden kann. Alternativ bietet sich die Neubebauung dieses besonders schönen Grundstücks an.
Für eine mögliche Neubebauung liegt bereits eine hochwertige Projektierung renommierter Architekten vor: Geplant wurde eine großzügige Villa mit ca. 360 m² Wohnfläche, die optimal auf die sonnige Hanglage abgestimmt ist.
Die Bebauung richtet sich nach dem Bebauungsplan. Zulässig ist eine Bebauung mit einem Vollgeschoss plus Dachgeschoss. Die Grundflächenzahl beträgt 0,25, die Geschossflächenzahl 0,3. Als Dachformen sind unter anderem Sattel- oder Walmdächer zulässig.
Die leichte Hanglage eröffnet attraktive architektonische Möglichkeiten und sorgt für eine besonders angenehme Wohnatmosphäre.
Die Umgebung ist insbesondere bei jungen Familien sehr beliebt. Kurze Wege zu Kindergärten und Grundschule sowie die unmittelbare Nähe zu den Wander- und Radwegen der Taunuswälder machen diese Lage besonders attraktiv.
Überzeugen Sie sich selbst von diesem besonderen Grundstück und vereinbaren Sie gerne einen Besichtigungstermin.
Lage
Königstein:
- Heilklimatischer Kurort am bewaldeten Taunus
- Ca. 17.000 Einwohner, exklusive Wohnlagen & Villenviertel
- Historische Altstadt mit Park & Burgruine
- Kulturelle Events (z. B. Burgfest, Ritterturniere)
- Gute Verkehrsanbindung: B-Straße & Autobahnen (A66, A661, A3)
- Bahnverbindung nach Frankfurt (ca. 40 Min. zum Hbf)
Falkenstein:
- Gehobene Wohnlage in grüner Umgebung
- Ideal für Wandern & Radfahren
- Freibäder in Kronberg & Königstein schnell erreichbar
- Restaurants fußläufig (z. B. Landgut Falkenstein, Wirtshaus Reichenbachtal)
-Hochwertige Hotels im Ort (Falkenstein Grand Hotel, Villa Rothschild)
Infrastruktur & Bildung:
- 3 Kindergärten & Grundschule vor Ort
- Weiterführende Schulen in der Nähe
- Gute Anbindung zur International School Oberursel (Bus, ca. 5 Gehminuten)
Freizeit & Versorgung:
- Sportangebote: Fitnessclub, Tennisclub, Golfclub Kronberg
- Einkaufsmöglichkeiten & Ärzte in ca. 5 Minuten erreichbar
- Ca. 20 Minuten Fahrt nach Frankfurt über A661, A5, A66
Die ungefähre Position der Immobilie auf Google Maps ansehen (Link auf externe Website)






